ALTUM CAPITAL представляет уникальную Резиденцию на набережной в центре Порторожа. Апартаменты премиум класса для тех, кто выбирает первую линию, приватность и статусную локацию.
Архитектура и структура комплекса
Каскадная композиция по естественному уклону формирует просторные террасы с прямым видом на море. Панорамные стеклянные стены наполняют пространства светом и создают гармоничную связь жилого интерьера с морем и открытым воздухом.
Резиденция включает 6 уровней и 7 отдельных апартаментов с открытыми террасами и видом на море и подземный этаж.
На подземном этаже: гараж на 7 машиномест, кладовые, велосипедная и технические помещения.
Лифт соединяет все уровни резиденции. Несколько входов обеспечивают удобство и приватность. Зеленые террасы формируют собственные наружные зоны и создают естественный экран от дороги.
Завершение строительства — весна 2027.
Инженерия и системы комфорта
– Высокий класс энергоэффективности
– Дерево-алюминиевые окна с тройным остеклением
– Тёплый пол от индивидуального теплового насоса
– Электрические жалюзи и полотняные маркизы на террасах
– Мульти-сплит кондиционирование
– Центральная вентиляция с рекуперацией воздуха
– Озеленённая кровля
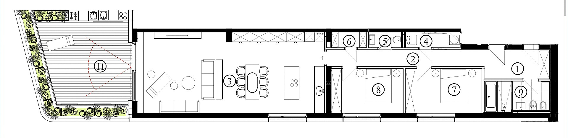
Апартаменты площадью 140,8 м² на первом этаже
– Просторная гостиная с кухней и столовой — 55,8 м²
– Две спальни
– Открытая терраса — 26,4 м²
– Большая ванная комната, гостевой туалет, кладовая и подсобное помещение
– Подготовка под летнюю кухню и джакузи
Стоимость
– Апартаменты: 1 773 575 € (НДС 22% включен в цену)
– Парковочное место: 36 600 €
Эксклюзивная резиденция в самом центре Порторожа является уникальной возможностью для ценителей престижной локации, приватности и панорамных видов, а также для тех, кто рассматривает покупку как долгосрочную инвестицию с высоким потенциалом сохранения и роста стоимости.
Откройте для себя ритм жизни у моря. Свяжитесь с нами, чтобы узнать детали.
3-комнатные премиум апартаменты с террасой в центре Порторожа
ALTUM CAPITAL представляет уникальную Резиденцию на набережной в центре Порторожа. Апартаменты премиум класса для тех, кто выбирает первую линию, приватность и статусную локацию.
Архитектура и структура комплекса
Каскадная композиция по естественному уклону формирует просторные террасы с прямым видом на море. Панорамные стеклянные стены наполняют пространства светом и создают гармоничную связь жилого интерьера с морем и открытым воздухом.
Резиденция включает 6 уровней и 7 отдельных апартаментов с открытыми террасами и видом на море и подземный этаж.
На подземном этаже: гараж на 7 машиномест, кладовые, велосипедная и технические помещения.
Лифт соединяет все уровни резиденции. Несколько входов обеспечивают удобство и приватность. Зеленые террасы формируют собственные наружные зоны и создают естественный экран от дороги.
Завершение строительства — весна 2027.
Инженерия и системы комфорта
– Высокий класс энергоэффективности
– Дерево-алюминиевые окна с тройным остеклением
– Тёплый пол от индивидуального теплового насоса
– Электрические жалюзи и полотняные маркизы на террасах
– Мульти-сплит кондиционирование
– Центральная вентиляция с рекуперацией воздуха
– Озеленённая кровля
Апартаменты площадью 140,8 м² на первом этаже
– Просторная гостиная с кухней и столовой — 55,8 м²
– Две спальни
– Открытая терраса — 26,4 м²
– Большая ванная комната, гостевой туалет, кладовая и подсобное помещение
– Подготовка под летнюю кухню и джакузи
Стоимость
– Апартаменты: 1 773 575 € (НДС 22% включен в цену)
– Парковочное место: 36 600 €
Эксклюзивная резиденция в самом центре Порторожа является уникальной возможностью для ценителей престижной локации, приватности и панорамных видов, а также для тех, кто рассматривает покупку как долгосрочную инвестицию с высоким потенциалом сохранения и роста стоимости.
Откройте для себя ритм жизни у моря. Свяжитесь с нами, чтобы узнать детали.